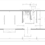
Kantoorunit 9x3 meter Toilet Keuken Zijraam

Prijs:€ 125,--
Aanbod op basis van beschikbaarheid

Vanaf minimaal 26 weken is deze zeer luxe goed geïsoleerde kantoorunit van 9x3 meter te huur
10 cm isolatie in dak vloer en wanden
Cementgebonden vloer

Entree met Toilet en Keuken met close in boiler, koelkast en vriesvak
Rechts een kleine ruimte
Links een grote ruimte met zijraam

Kachels en boiler zijn elektrisch, geen gas aansluiting nodig

Riool, water en stroom door de wand
Dus niet door de vloer

Kunststof kozijnen met draai kiep ramen en rolluiken

Zeer nette representatieve kantoorunit !

Minimaal 26 weken huur

Verhuur alleen aan bedrijven

Bezichtiging op afspraak

Prijs exclusief BTW en af locatie Heukelum

Transportkosten op aanvraag